岡谷不動産商事有限会社

物件詳細

HOME > 借りたい > 物件詳細

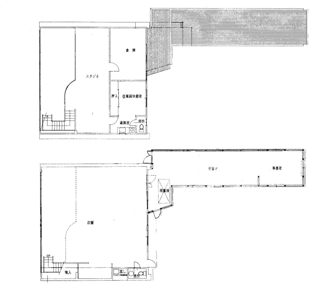
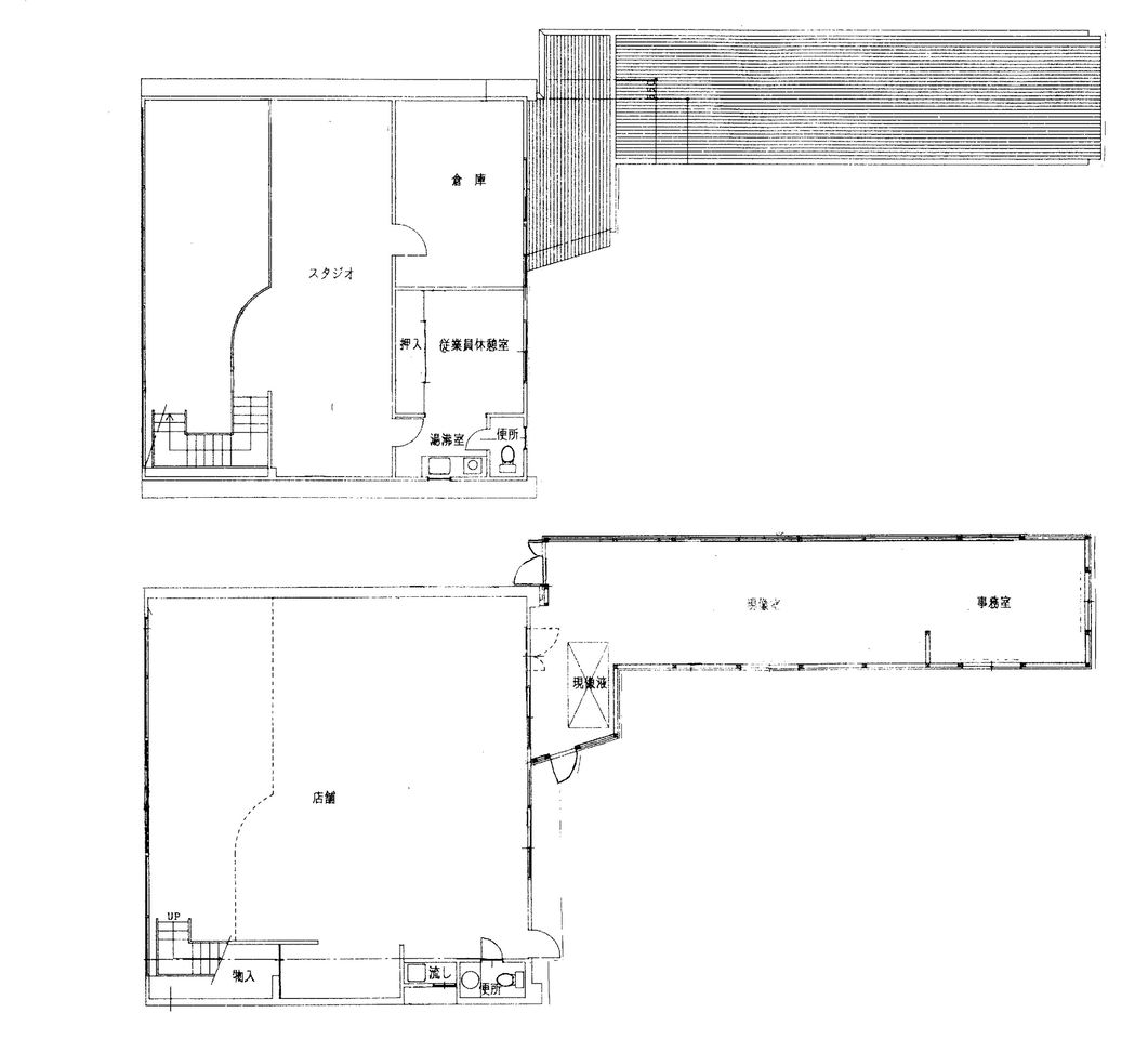
貸店舗

テナントの業種により改装は相談となります。

所在地
岡谷市本町4丁目 6番5号

賃料 25 万円

専有面積563.88㎡(170.57坪)

礼金 なし

敷金 1ヶ月 25万円

担当者より

◆クリックすると画像が切り替わります。

所在地 岡谷市本町4丁目 6番5号
建物名・部屋番号 サカニシビル  共益費
貸階数 総階数 2階 
構造 鉄骨造 完成年月 1996年
手数料 引渡/入居日 相談
専有面積 563.88㎡(170.57坪) 消費税内税額
更新料 なし  契約期間 2年
保険 有 宅建ファミリー共済保険 18500円/2年 保証金 無 
その他一時金 なし 
駐車場 有 
設備 トイレ・収納スペース
交通 電車: 中央本線岡谷駅 距離1000m 徒歩13分 
高速道路: 長野道 岡谷I.C. 車8分 
備考 現在はスケルトンに近い状態となっています。
管理番号 取引態様 媒介
最終更新日 2026-02-17

マップ

Map

※物件位置が表示されていない場合もあります。 正確な位置は取り扱い会社へお問い合わせください

物件のお問い合わせ

Contact

物件情報 物件番号:449497 / 貸店舗 / 岡谷市本町4丁目6番5号 / 賃料:25万円
お名前 必須
電話番号 必須
FAX
※FAXで資料送付をご希望の方は、必ず入力してください。
メールアドレス 必須
資料送付先 郵便番号 
住所 
※郵送で資料送付をご希望の方は、必ず入力してください。
お問い合わせ種別



ご質問内容
ご希望の条件、ご予算、その他質問事項があればご記入ください

※お使いのメールサービス、メールソフト、ウィルス対策ソフト等の設定により「迷惑メール」と認識され、メールが届かない場合があります。 (特にGmailやYahoo!メールなどのフリーメールをお使いの方)
その場合は「迷惑メールフォルダー」等をご確認いただくか、お使いのサービス・ソフトウェアの設定をご確認ください。

Page
Top