岡谷不動産商事有限会社

物件詳細

HOME > 買いたい > 物件詳細

住宅用土地

実測なので安心です。安全に学校へ通えます。準防火地域です。道路後退部分は市へ寄付をします。

所在地
岡谷市田中町1丁目 9-20

価格 1545 万円

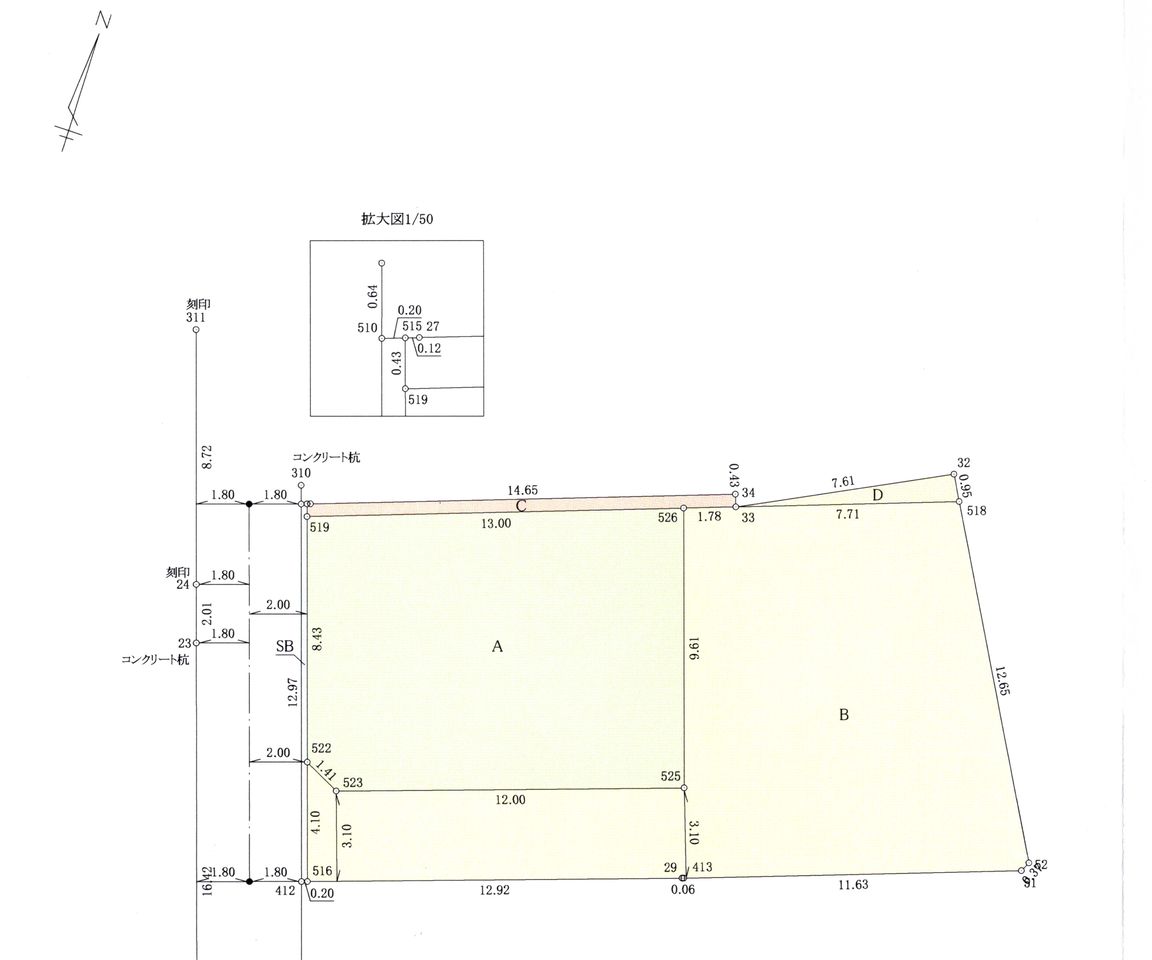
土地面積実測  300.47㎡ (90.89坪)

坪単価17万円

担当者より

◆クリックすると画像が切り替わります。

所在地 岡谷市田中町1丁目 9-20 区画名
価格 1545万円 坪単価 坪単価17万円
土地面積 実測  300.47㎡ (90.89坪) 私道負担面積
地目 宅地 用途地域 1種住居
建ぺい率 60% 容積率 200%
適する用途 住宅用土地 都市計画法 非線引区域
手数料 引渡 相談
湯権 下水道 公共下水道
通学区 岡谷市立岡谷田中小学校 (490m)
岡谷市立岡谷南部中学校 (1100m)
その他一時金
設備 建築条件なし・セットバック要・上水道・下水道
接道状況 方角:西 道路幅員:4m 公私区分:公道 接面:12.5m 
交通 電車: 中央本線岡谷駅 距離900m 
高速道路: 長野道 岡谷I.C. 車10分 
備考 道路後退などの分筆はこれからします。
管理番号 取引態様 専任媒介
最終更新日 2026-02-06

マップ

Map

※物件位置が表示されていない場合もあります。 正確な位置は取り扱い会社へお問い合わせください

物件のお問い合わせ

Contact

物件情報 物件番号:449886 / 住宅用土地 / 岡谷市田中町1丁目9-20 / 価格:1545万円
お名前 必須
電話番号 必須
FAX
※FAXで資料送付をご希望の方は、必ず入力してください。
メールアドレス 必須
資料送付先 郵便番号 
住所 
※郵送で資料送付をご希望の方は、必ず入力してください。
お問い合わせ種別



ご質問内容
ご希望の条件、ご予算、その他質問事項があればご記入ください

※お使いのメールサービス、メールソフト、ウィルス対策ソフト等の設定により「迷惑メール」と認識され、メールが届かない場合があります。 (特にGmailやYahoo!メールなどのフリーメールをお使いの方)
その場合は「迷惑メールフォルダー」等をご確認いただくか、お使いのサービス・ソフトウェアの設定をご確認ください。

Page
Top